会社情報
サービス案内
構造設計
耐震診断
携帯電話基地局強度検討
太陽光パネル設置検討
実績
事例
よくあるご質問
採用情報
TEL
03-5807-2135
受付時間 9:00~18:00 (土日祝除く)
CASE STUDY
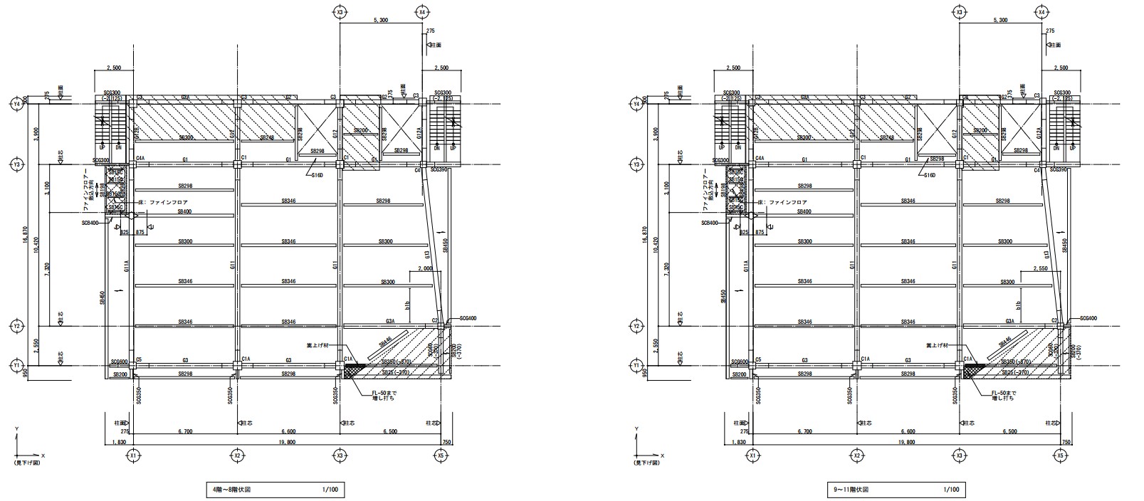
共同住宅
東京都
構造設計
2001年度
伏図
軸組図
延面積
16,000m
2
建築面積
2,800m
2
設計ルート
X方向:ルート3 Y方向:ルート3
構造
鉄骨構造
架構形式
X方向:連層耐震壁
Y方向:ラーメン
階数
地上 6階 地下 0階 塔屋 0階
高さ
17.500m
軒の高さ
17.100m
基礎形式
地盤改良による直接基礎(布基礎)
事例一覧に戻る
その他の構造設計事例
CASE STUDY
滋賀県
構造設計
2022年度
倉庫業を営む倉庫
延面積
64,000m
2
構造
鉄筋コンクリート柱・鉄骨梁混合構造
兵庫県
構造設計
2020年度
倉庫業を営む倉庫
延面積
45,700m
2
構造
鉄骨構造
東京都
構造設計
2017年度
ショッピングセンター
延面積
16,400m
2
構造
鉄骨構造
東京都
構造設計
2011年度
共同住宅
延面積
1,600m
2
構造
壁式鉄筋コンクリート構造
東京都
構造設計
2015年度
冷蔵庫棟
延面積
16,500m
2
構造
鉄骨鉄筋コンクリート構造
神奈川県
構造設計
2020年度
物品販売を営む店舗
延面積
16,600m
2
構造
鉄骨構造
千葉県
構造設計
2012年度
高齢者向けサービス付集合住宅
延面積
6,800m
2
構造
鉄筋コンクリート構造
埼玉県
構造設計
2010年度
倉庫業を営まない倉庫
延面積
10,300m
2
構造
鉄骨構造
千葉県
構造設計
2014年度
スポーツ練習場(会員制スポーツクラブ)
延面積
5,600m
2
構造
鉄骨構造
兵庫県
構造設計
2008年度
倉庫業を営む倉庫
延面積
25,300m
2
構造
鉄骨構造+コンクリート充填鋼管構造
すべての事例を見る
構造設計
STRUCTURAL DESIGN
年度別実績一覧
LIST OF RESULTS
サービス
SERVICE
会社情報
COMPANY
よくあるご質問
FAQ
HOME
事例
共同住宅